5-7 Halley Crescent , Campbellfield
Ex Caravan Manufacturing Factory
This listing has been archived and is displayed for archive purposes only
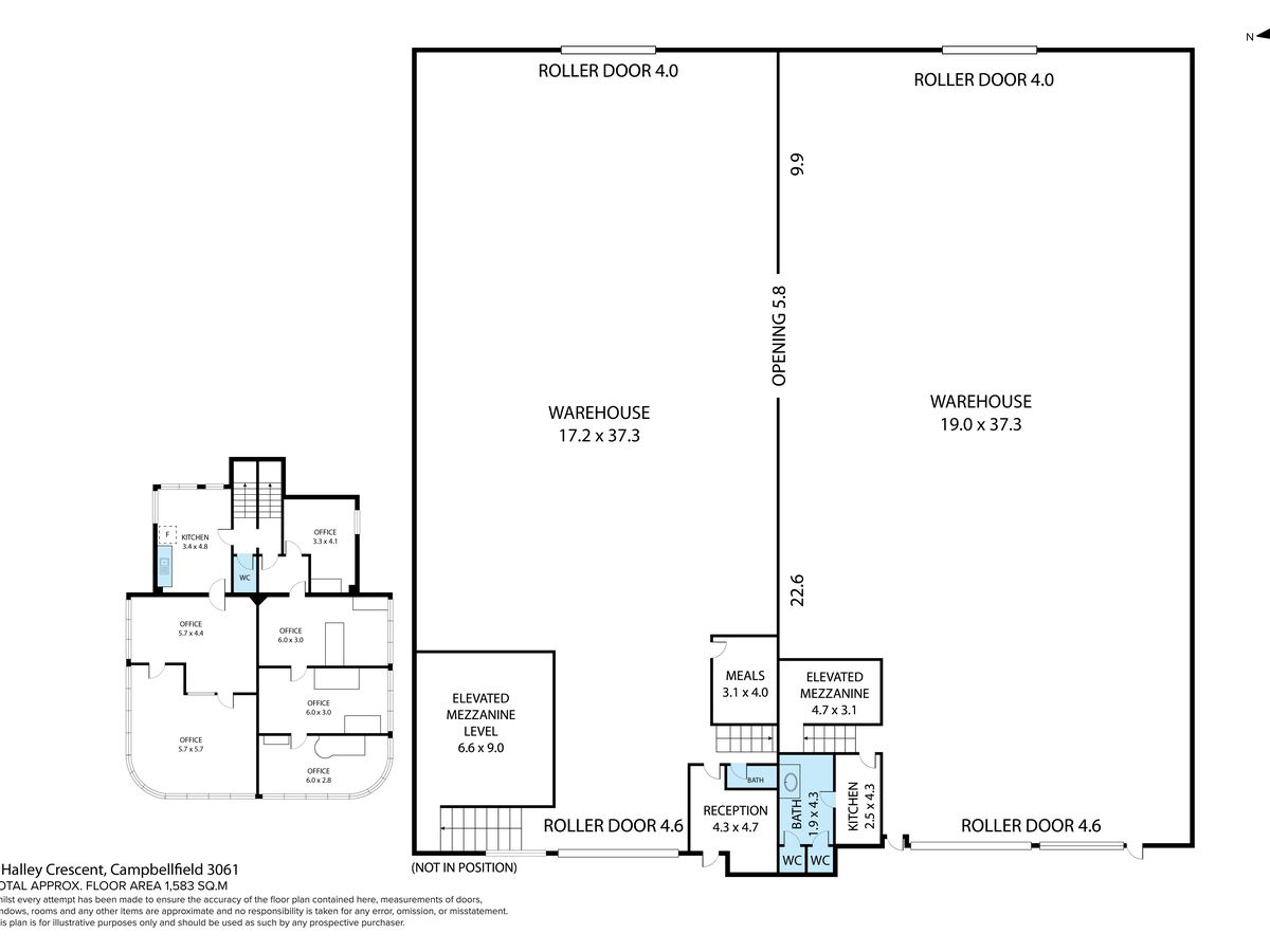
Register your immediate interest to lease these two spacious fully fitted out factories of approximately 1,583 sqm. with amenities and offices. Ideal for use as a caravan manufacturing factory or any other manufacturing factory.
Fitted out with compressor lines and three phase power throughout.
Each energy efficient factory features solar electricity inverters which convey approximately 858.9 volts and 20.92 amps from an array of solar panels on the factory roof.
High Clearance Warehouse with container access
Fully fenced front yard providing secure onsite car parking for 16 cars
Amenities designed to handle a large workforce.
Centrally located just off the Hume Highway adjacent to Truck City.
Call today to book an inspection.
Mortgage Calculator
$3,078
Estimated monthly repayments based on properties like this.
Loan Amount
Interest Rate (p.a)
Loan Terms








