2 / 734 High Street, Epping
Furnished first floor office with first class amenities.
This "government tenancy approved" modern office building is complete with wheelchair friendly lift access to first floor. While a disabled toilet facility is located in the complex on the ground floor.
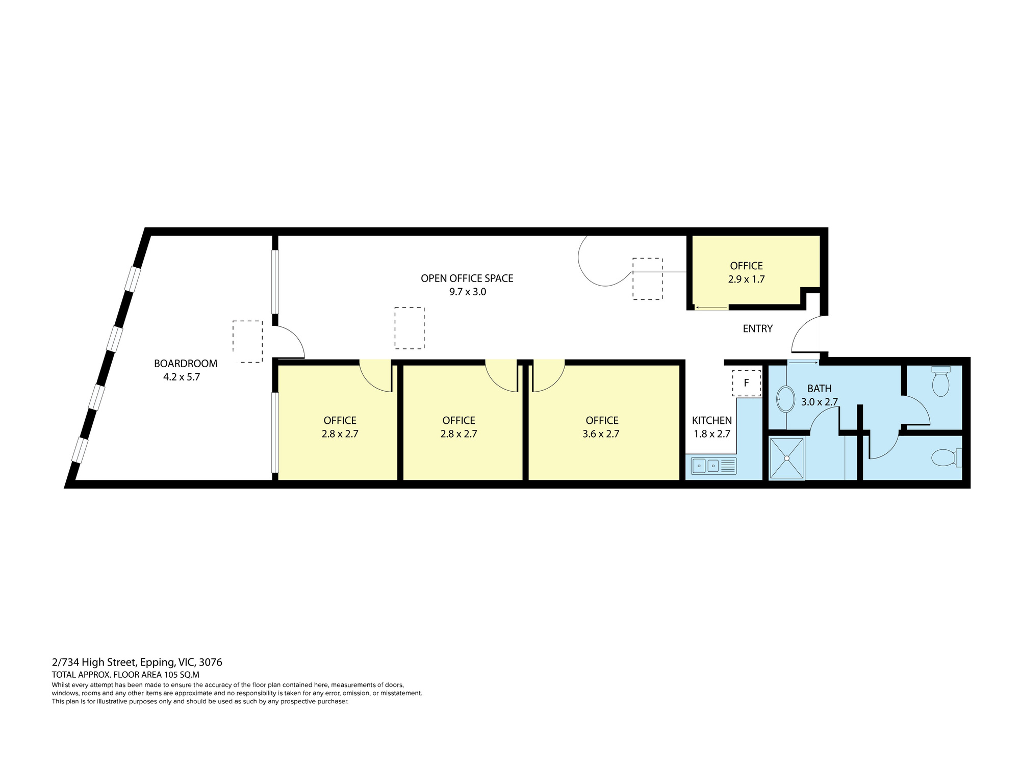
This first floor office has its own shower and separate male and female toilets.
Offering an open plan office space together with four separate offices and a board room that overlooks High Street.
It features networked offices with a separate data/internet room, and it has been recently painted and new commercial carpets installed also.
Ideal for a government tenancy, employment agency, NDIS provider, Allied Health practitioner etc
Mortgage Calculator
$3,078
Estimated monthly repayments based on properties like this.
Loan Amount
Interest Rate (p.a)
Loan Terms





