30 Puckle Street, Moonee Ponds
My Restaurant Rules - Blue Chip Freehold Investment
A trophy investment worthy to add to any investment portfolio.
The Real Estate Business is pleased to offer
30 Puckle Street Moonee Ponds to the market via Expression of Interest closing Friday 10th April at 4:00pm
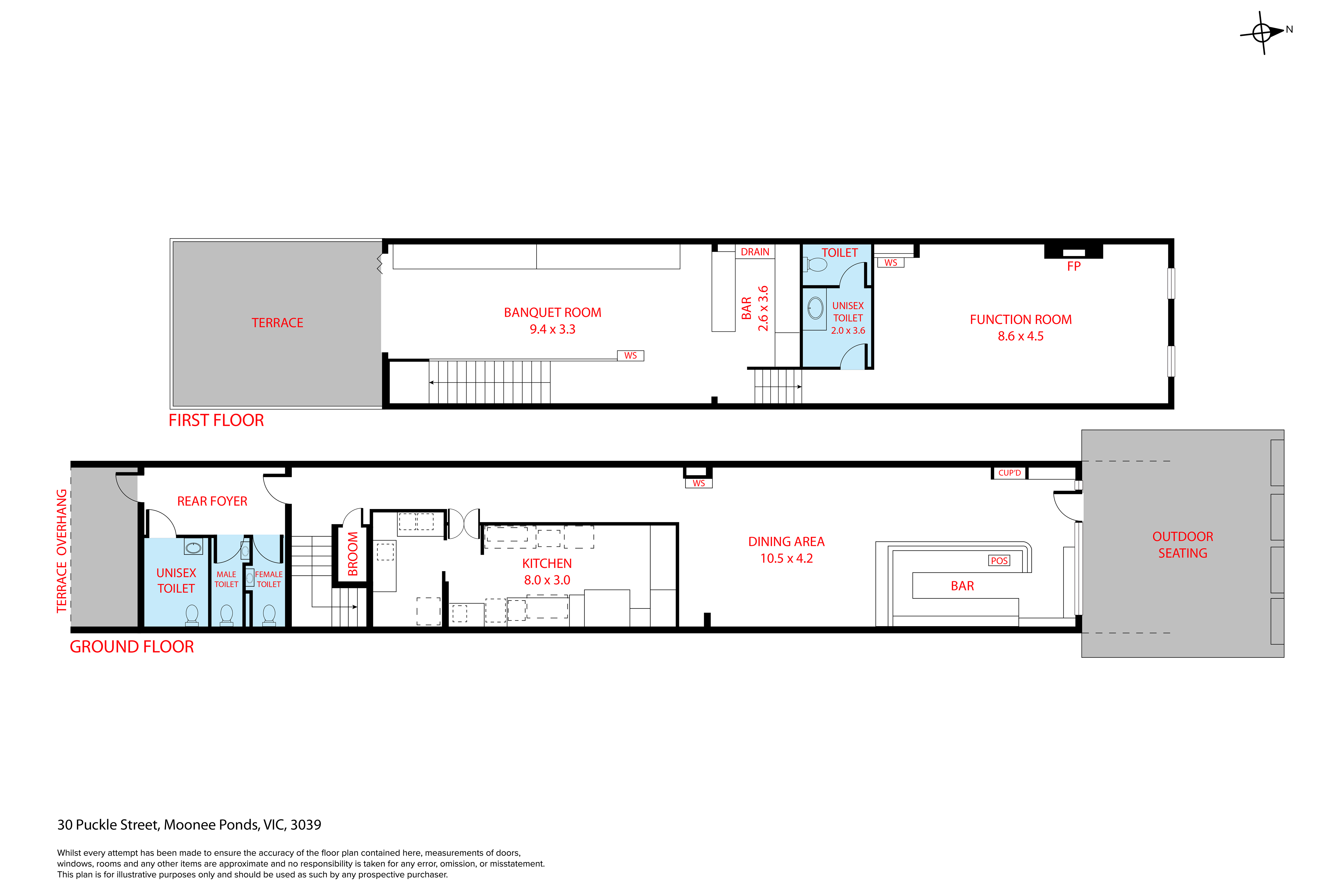
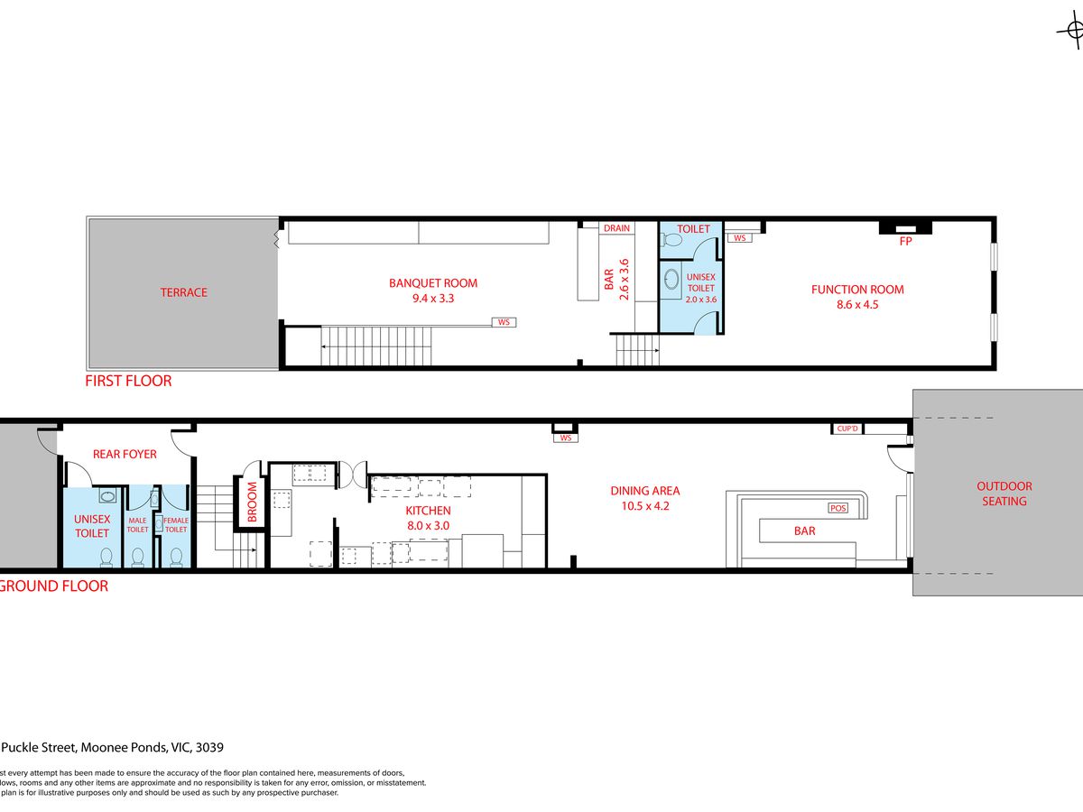
This heritage listed building circa 1880 is known as the Dudley Building. A two storey red clinker brick building that has been empathetically and meticulously restored and extended to provide approximately 300sqm of first-class restaurant accommodation. The first floor offers a private function room, an outdoor al fresco dining area, a central banquette dining area and bar and uni-sex bathroom. The ground floor features the original red clinker brick which compliments the historical charm and character of the restaurant and building alike. The restaurant bar greets you at the front of the building while the kitchen, complete with its gas pizza oven is located in the middle of the building, with male, female and a uni-sex toilet towards the rear of the shop. The building also features a 2000ltr grease trap and rear access and accommodation for one car via Puckle lane.
Securely leased to Farro Pizzeria on a five-year lease since 14th June 2023. With three further terms of 5 years each which end on the 13th June 2043. Market reviews at the start of each new term together with 4% annual increases. Current rent is $108,160 pa plus GST plus Outgoings.
Note Farro specialize in organic spelt pizza and pasta. They have other restaurants located in Fitzroy, Thornbury, Hawthorn, Richmond and South Melbourne.
30 Puckle Street Moonee Ponds is located in the trendy, active and vibrant part of Puckle Street with neighbours that include Sportsgirl, McDonalds, Palace Cinemas, Penny Lane Arcade and Apartments which feature Brunetti, Guzman y Gomez and Royal Stacks.
Don't miss out on this opportunity to secure this truly remarkable property. An investment that that you can set and forget and just collect the rent. Call today to register your interest.
Mortgage Calculator
$3,078
Estimated monthly repayments based on properties like this.
Loan Amount
Interest Rate (p.a)
Loan Terms

